Modernes Wohnen in Trier-Irsch - Neubau mit toller Dachterrasse und Weitblick
ID: EFGNBTRHO318/1290271
Información de contacto :
Herr Norbert Scherf
Scherf Profi Immobilien Service GmbH
Paulinstraße
54292 Trier
Tel.: +49 (0) 651 97878-0
Fax: +49 (0) 651 97878-78
Scherf Profi Immobilien Service GmbH
Paulinstraße
54292 Trier
Tel.: +49 (0) 651 97878-0
Fax: +49 (0) 651 97878-78
Casas geminadas Trier Venda Alemanha | Aussicht 3

Casas geminadas Venda
€ 589 000 (≈ US$ 684 000)
DE-54296 Trier, Mariahof
Rheinland-Pfalz, Alemanha
Contactar o proprietário
Financeiro
€ 589 000 (≈
Comissão livre para o comprador / inquilinodisponível Ende 2025
2025
primeira vez de uso
Quartos
quarto4
quarto3
Casa de Banho / WC2
Áreas
Àrea1.302,43 pé
propriedade0,04 acre
área útil452 pé
extras
Adega

Facilidades
Vista panorâmicaDescrição
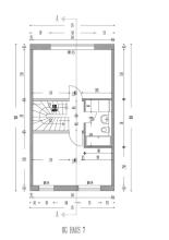
Die Alternative zur Eigentumswohnung - Neues Stadthaus als Energiesparhaus mit toller Dachterrasse und herrlicher Weitsicht in schöner Lage von Trier-Irsch - Nahe Universität.Neues Einfamilienreihenhaus in schöner Lage von Trier-Irsch. Das Haus entsteht in massiver Ausführung (Stein auf Stein) mit einem attraktiven Grundriss, guter Ausstattung sowie moderner Technik
Die Planung für dieses Objekt sieht im Erdgeschoß einen geräumigen Wohnraum mit offener Küche von insgesamt ca. 32 m² und Ausgang auf die sonnige Terrasse von ca. 15 m² und in den kleinen Garten vor. Das Erdgeschoß wird durch den Abstellraum sowie das Gäste-WC vervollständigt. Das Obergeschoß erreichen Sie über eine massive Treppe. Hier befindet sich das große Elternschlafzimmer von ca. 19 m² , ein schönes großes Kinderzimmer von ca. 18 m² sowie das Bad mit Wanne
Im Dachgeschoß befinden sich ein attraktives Schlafzimmer von ca. 14 m², ein geräumiges Duschbad sowie die schöne Dachterrasse von ca. 16 m² mit herrlicher Weitsicht.
Das Haus ist voll unterkellert. Hier sind der Waschraum, die Technik sowie ein Lagerraum vorhanden.
Zum Haus gehören 2 Stellplätze in unmittelbarer Nähe des Hauses.
Die Fertigstellung ist für Ende 2025 vorgesehen.
Sie können die Innenausstattung noch mitbestimmen. Hier sind attraktive Fliesenbeläge bzw schöne Parkett oder Vinylboden vorgesehen.
Alter: NEUBAU
posição
#Saarburg-Kell
Trier-Irsch, gefragte Wohnlage. Alle Einrichtungen des täglichen Bedarfs sind auf kurzen Wegen erreichbar, z.B. im Einkaufszentrum Trier-Tarforst. Ebenso ist eine gute Verkehrsanbindung in alle Richtungen gegeben. Das Objekt entsteht in zentraler Ortslage mit schönem Blickacessórios
Neues Einfamilienreihenhaus in schöner Lage von Trier-Irsch. Das Haus entsteht in massiver Ausführung (Stein auf Stein) mit einem attraktiven Grundriss, guter Ausstattung sowie moderner TechnikDie Planung für dieses Objekt sieht im Erdgeschoß einen geräumigen Wohnraum mit offener Küche von insgesamt ca. 32 m² und Ausgang auf die sonnige Terrasse von ca. 15 m² und in den kleinen Garten vor. Das Erdgeschoß wird durch den Abstellraum sowie das Gäste-WC vervollständigt. Das Obergeschoß erreichen Sie über eine massive Treppe. Hier befindet sich das große Elternschlafzimmer von ca. 19 m² , ein schönes großes Kinderzimmer von ca. 18 m² sowie das Bad mit Wanne
Im Dachgeschoß befinden sich ein attraktives Schlafzimmer von ca. 14 m², ein geräumiges Duschbad sowie die schöne Dachterrasse von ca. 16 m² mit herrlicher Weitsicht.
Das Haus ist voll unterkellert. Hier sind der Waschraum, die Technik sowie ein Lagerraum vorhanden.
Zum Haus gehören 2 Stellplätze in unmittelbarer Nähe des Hauses.
Die Fertigstellung ist für Ende 2025 vorgesehen.
Sie können die Innenausstattung noch mitbestimmen. Hier sind attraktive Fliesenbeläge bzw schöne Parkett oder Vinylboden vorgesehen.
Teilbar ab: 121
Certificado de Desempenho Energético
passe Energia: ab 01.Mai. 2014
Data de emissão: 2022-05-23
válido até: 22.05.2032
De energia primária: Bomba de calor da fonte de ar
construído: 2022
A demanda por energia: 16,00 kwh/(m²*a)
Clase : A+
Data de emissão: 2022-05-23
válido até: 22.05.2032
De energia primária: Bomba de calor da fonte de ar
construído: 2022
A demanda por energia: 16,00 kwh/(m²*a)
Clase : A+

outro
Vereinbaren Sie einen Besichtigungstermin !Gerne sind wir Ihnen bei der Gestaltung Ihrer Finanzierung behilflich. Die Zinsen können z.B. auf die Dauer von 10 oder 15 Jahren festgeschrieben werden. Hierdurch können sich Ihre monatlichen Raten nicht verändern !.
Familien mit Kindern haben die Möglichkeit günstige öffentliche Darlehen von bis zu 190.000 EUR über die ISB Rheinland-Pfalz zu erhalten. Hier ist der Zinssatz bis zur vollständigen Tilgung 3,15 %. Ebenso ist ein Tilgungszuschuss von bis zu 10 % möglich
Lassen Sie sich beraten.
Unsere Nachweis/Vermittlungsgebühr beträgt 1,785 % incl. MwSt.
Widerrufsrecht für Verbraucher: Sie können als Verbraucher Ihre Erklärung innerhalb von 14 Tagen ohne Angabe von Gründen in Textform ( z. B. Brief oder E-Mail) widerrufen. Zur Wahrung der Widerrufsfrist genügt die rechtzeitige Absendung des Widerrufs oder die Rückgabe der Sache. Der Widerruf ist zu richten an: Firma Scherf Profi Immobilien Service GmbH, Paulinstraße 104, 54292 Trier - Telefon: 0651 - 978 78 0, Email: Info@scherf-immobilien.de
Mit der Angebotsanfrage willigen Sie ein, dass die Firma Scherf Profi Immobilien Service GmbH, mit dem Sitz in Trier, Ihre personenbezogenen Daten zum Zweck der Übermittlung von Angeboten und Kaufverhandlungen mit Zusendung von weiteren Informationen aus dem Immobilienbüro verarbeitet und Ihnen diese Informationen zusendet bzw. Sie anruft. Sie werden hiermit ausdrücklich darüber informiert, dass Sie diese Einwilligung jederzeit und ohne Angaben von Gründen gegenüber dem Immobilienunternehmen widerufen werden kann.
Weitere interessante Kauf- oder Mietangebote finden Sie unter www.scherf-immobilien.de
renúncia
Alle Daten haben wir vom Eigentümer erhalten. Hierfür kann unsererseits keine Gewähr übernommen werden. Das Angebot ist unverbindlich und freibleibend. Zwischenverkauf bleibt vorbehalten.



















data load ...
Anúncios