Helle Neubauwohnung mit eigenem Garten im KFW 40 Energiesparhaus Nähe Porta Nigra
ID: ETNBTH1201A/1290606
#LeilighetPåBakkeplan #Trier #RheinlandPfalz #SaarburgKell #Tyskland
Kontaktinformasjon:
Herr Norbert Scherf
Scherf Profi Immobilien Service GmbH
Paulinstraße
54292 Trier
Tel.: +49 (0) 651 97878-0
Fax: +49 (0) 651 97878-78
Scherf Profi Immobilien Service GmbH
Paulinstraße
54292 Trier
Tel.: +49 (0) 651 97878-0
Fax: +49 (0) 651 97878-78
Leilighet på bakkeplan Trier Tyskland | Wohnung 1

Leilighet på bakkeplan
€ 649 000 (≈ US$ 739 000)
DE-54292 Trier, Nord
Rheinland-Pfalz, Tyskland
Kontakt eier
Finansiere
€ 649 000 (≈

tilgjengelig 2027
2025
første gangs bruk
Rom
Room4
soverom3
Bad / toalett1
Områder
boareal1.240,54 kvadratfot
statister
Kjeller

Beskrivelse
Altersgerechtes Wohnen im KFW 40 Energiesparhaus in Trier Nähe Porta Nigra – unmittelbar an den Krankenhäusern - Darlehen von 100.000 EUR ab 0,35 % Zins möglich.Moderne Eigentumswohnungen in altersgerechter Ausführung im Energiesparhaus (KfW 40 Standard) in zentraler Innenstadtlage Trier mit moderner Technik, Aufzug und guter Ausstattung. In dieser exponierten Lage entstehen attraktive Eigentumswohnungen mit Aufzug und Tiefgarage, moderner Technik in altersgerechter Ausführung. Es sind eine moderne Luftwärmepumpe in Verbindung mit Fußbodenheizung, elektrische Rollläden, Aufzug, eine kontrollierte Wohnraumbelüftung mit Wärmerückgewinnung, eine Photovoltaikanlage, schöne Fliesen sowie attraktive Parkettböden in einer guten Qualität vorgesehen. Sie können hier noch Ihre persönliche Note einbringen. Die Errichtung erfolgt unter Berücksichtigung moderner Energiestandards (KfW-Effizienzhaus 40 Programm 297 bzw. 298 sowie Familienförderung 300) sowie einer guten Ausstattung. Die Kombination von moderner Technik und hochwertiger Isolierung führt zu günstigen Heizkosten bzw. Nebenkosten. Alle Wohnungen verfügen über schöne Balkone oder Terrassen. Die Wohnungen im Erdgeschoß haben die Möglichkeit für eine eigene Grünfläche/ eigenen Garten.
Geniesen Sie den Wohnkomfort eines modernen hellen überwiegend barrierefreien Gebäudes mit neuester Technik.
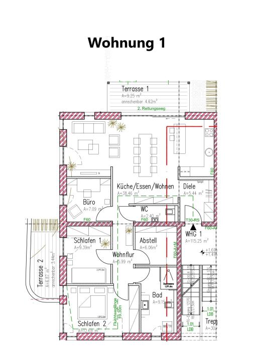
Das Angebot bezieht sich auf die Wohnung 1 im Erdgeschoß. Sie gelangen über eine geräumige Diele mit Garderobe in die Wohnung. Von der Diele gelangen Sie in das Gäste-WC sowie in den das Büro von ca. 8 m². Ebenso gelangen Sie in hellen geräumigen Wohn/Eßbereich mit offener Küche von ca. 30 m² sowie auf die sonnige Terrasse von 11 m² sowie in den eigenen Garten Über den Wohnbereich gelangen Sie in den separaten Schlaftrakt. Dieser besteht aus dem geräumigen Bad mit Fenster von ca. 9 m² ausgestattet mit Dusche und Wanne, dem gut aufgeteilten Elternschlafzimmer von ca. 13 m², dem funktionellen Hauswirtschaftsraum von . 6 m² sowie dem hellen Kinderzimmer/Büro von ca. 10 m² mit Zugang auf die zweite Terrasse sowie in den Garten. Die Wohnung hat eine Wohnfläche von ca. 109 m². Der Wohnung ist ein Kellerraum zugeordnet.
Die Wohnanlage erfüllt die technischen Voraussetzungen um die KFW Darlehen nach den Programmen 297, 298 und dem Programm 300 (Familieförderung)
Es besteht die Möglichkeit Tiefgaragenstellplätze für 30.000 EUR oder einen Außenstellplatz für 20.000 EUR Mehrpreis zu erwerben. Der Baubeginn ist für Ende 2025 vorgesehen mit einer geplanten Bauzeit von ca. 18 Monaten. Der Energieausweis ist in Bearbeitung und wird wegen dem KFW 40 Standard Energieklasse A + ausweisen.
Alter: NEUBAU
stilling
#Saarburg-Kell
Trier-Innenstadt Nähe Porta Nigra, unmittelbar am Krankenhaus der Barmherzigen Brüder bzw. dem Mutterhaus-Nord, eine zentrale Stadtlage nur wenige Gehminuten von der Fußgängerzone entfernt. Aus dieser verkehrsgünstigen Lage erreichen Sie in wenigen Gehminuten die Fußgängerzone/Innenstadt und haben eine gute Verkehrsanbindung zu den Autobahnen Luxemburg, Koblenz und Saarbrücken. Alle Einrichtungen des täglichen Bedarfs sind auf kurzen Wegen, teilweise sogar fußläufig erreichbar.fittings
Moderne Eigentumswohnungen in altersgerechter Ausführung im Energiesparhaus (KfW 40 Standard) in zentraler Innenstadtlage Trier mit moderner Technik, Aufzug und guter Ausstattung. In dieser exponierten Lage entstehen attraktive Eigentumswohnungen mit Aufzug und Tiefgarage, moderner Technik in altersgerechter Ausführung. Es sind eine moderne Luftwärmepumpe in Verbindung mit Fußbodenheizung, elektrische Rollläden, Aufzug, eine kontrollierte Wohnraumbelüftung mit Wärmerückgewinnung, eine Photovoltaikanlage, schöne Fliesen sowie attraktive Parkettböden in einer guten Qualität vorgesehen. Sie können hier noch Ihre persönliche Note einbringen. Die Errichtung erfolgt unter Berücksichtigung moderner Energiestandards (KfW-Effizienzhaus 40 Programm 297 bzw. 298 sowie Familienförderung 300) sowie einer guten Ausstattung. Die Kombination von moderner Technik und hochwertiger Isolierung führt zu günstigen Heizkosten bzw. Nebenkosten. Alle Wohnungen verfügen über schöne Balkone oder Terrassen. Die Wohnungen im Erdgeschoß haben die Möglichkeit für eine eigene Grünfläche/ eigenen Garten. Geniesen Sie den Wohnkomfort eines modernen hellen überwiegend barrierefreien Gebäudes mit neuester Technik.
Das Angebot bezieht sich auf die Wohnung 1 im Erdgeschoß. Sie gelangen über eine geräumige Diele mit Garderobe in die Wohnung. Von der Diele gelangen Sie in das Gäste-WC sowie in den das Büro von ca. 8 m². Ebenso gelangen Sie in hellen geräumigen Wohn/Eßbereich mit offener Küche von ca. 30 m² sowie auf die sonnige Terrasse von 11 m² sowie in den eigenen Garten Über den Wohnbereich gelangen Sie in den separaten Schlaftrakt. Dieser besteht aus dem geräumigen Bad mit Fenster von ca. 9 m² ausgestattet mit Dusche und Wanne, dem gut aufgeteilten Elternschlafzimmer von ca. 13 m², dem funktionellen Hauswirtschaftsraum von . 6 m² sowie dem hellen Kinderzimmer/Büro von ca. 10 m² mit Zugang auf die zweite Terrasse sowie in den Garten. Die Wohnung hat eine Wohnfläche von ca. 115 m². Der Wohnung ist ein Kellerraum zugeordnet.
Die Wohnanlage erfüllt die technischen Voraussetzungen um die KFW Darlehen nach den Programmen 297, 298 und dem Programm 300 (Familieförderung)
Es besteht die Möglichkeit Tiefgaragenstellplätze für 30.000 EUR oder einen Außenstellplatz für 20.000 EUR Mehrpreis zu erwerben. Der Baubeginn ist für Ende 2025 vorgesehen mit einer geplanten Bauzeit von ca. 18 Monaten. Der Energieausweis ist in Bearbeitung und wird wegen dem KFW 40 Standard Energieklasse A + ausweisen.
Teilbar ab: 115.25
Energy Performance Certificate
Utstedelsesdato: 2025-06-21
gyldig til: 21.06.2035
energi pass: BEDARF
Primær energi: Luft varmepumpe
Inne: 2025
Energibehovet: 14,00 kwh/(m²*a)
Klasse: A+
gyldig til: 21.06.2035
energi pass: BEDARF
Primær energi: Luft varmepumpe
Inne: 2025
Energibehovet: 14,00 kwh/(m²*a)
Klasse: A+

annet
Vereinbaren Sie einen Besichtigungs/Beratungstermin ! In Zusammenarbeit mit einem Finanzierungsvermittler sind wir Ihnen gerne bei der Gestaltung Ihrer Finanzierung behilflich. Die Zinsen können z.B. auf die Dauer von 10 oder 15 Jahren festgeschrieben werden. Hierdurch können sich Ihre monatlichen Raten nicht verändern ! Die Wohnanlage erfüllt die technischen Voraussetzungen um die KFW Darlehen nach den Programmen 297, 298 und dem Programm 300 (Familienförderung) zu ermöglichen..
Bei den Programmen 297 und 298 sind aufgrund des Standards
KFW 40 je Wohnung Darlehen von 100.000 EUR zu günstigen Zinsen möglich. Die Zinssätze richten sich nach dem Tilgungszeitraum und betragen :
a) bei einer Tilgung innerhalb 10 Jahren 2,31 %
b) bei einer Tilgung innerhalb 25 Jahren 2,87 %
c) bei einer Tilgung innerhalb 35 Jahren 2,96 %.
Die Förderungen sind an keine persönlichen Voraussetzungen gebunden. Sie sind sowohl für die Eigennutzung (Programm 297) sowie für die Vermietung (Programm 298) möglich.
Beim Programmen 300 - Familienförderung sind aufgrund des Standards KFW 40 je Wohnung Darlehen für eine Familie mit einem Kind von 170.000 EUR zu sehr günstigen Zinsen möglich. Die Zinssätze richten sich nach der Zinsfestschreibung und dem Tilgungszeitraum und betragen
1. bei einer Zinsfestschreibung von 10 Jahren:
a) bei einer Tilgung innerhalb 10 Jahren 0,34 %
b) bei einer Tilgung innerhalb 25 Jahren 1,53 %
c) bei einer Tilgung innerhalb 35 Jahren 1,71 %.
2. bei einer Zinsfestschreibung von 20 Jahren:
a) bei einer Tilgung innerhalb 25 Jahren 2,93 %
b) bei einer Tilgung innerhalb 35 Jahren 3,40 %.
Diese Förderungen sind an persönlichen Voraussetzungen gebunden. (zu versteuerndes Einkommen (auch Luxemburg) – 90.000 – Mittelwert 2022 und 2023)
Die Zinssätze verändern sich entsprechend den Vorgaben der KFW.
Die KFW Darlehen können über die jeweils finanzierende Bank mit dem Sitz in Deutschland beantragt und abgewickelt werden. Die erforderliche Bestätigung des Energieberaters kann zeitnah erstellt werden.
Hinweis bei Vermietung: Die Wohnungen können bei einem Erwerb bis zum Jahr der Fertigstellung und einer Vermietung entsprechend den aktuellen Änderungen des Wirtschaftschancengesetzes mit einer degressiven Abschreibung von jährlich 5 % bezogen auf den jeweiligen Buchwert abgeschrieben werden. Hierdurch werden hohe Steuervorteile erzielt. Wir übernehmen weder eine steuerliche Beratung noch die Haftung für steuerliche Ziele. Sprechen Sie mit Ihrem Steuerberater. Dieser berät Sie gerne umfassend und fachgerecht.
Weitere interessante Kauf- oder Mietangebote finden Sie unter www.scherf-immobilien.de
Ansvarsfraskrivelse
Alle Daten haben wir vom Eigentümer erhalten. Hierfür kann unsererseits keine Gewähr übernommen werden. Das Angebot ist unverbindlich und freibleibend. Zwischenverkauf bleibt vorbehalten.
Annonser